Ultimo piano servito da ascensore
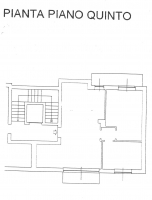
In vendita a Bergamo, in zona Borgo Palazzo, si trova un bellissimo ultimo piano, situato in un condominio del 2000, servito da ascensore e con spese condominiali di 100 euro al mese. Con una superficie totale di 70 metri quadrati, l'immobile è composto da un ampio soggiorno con zona divani, zona pranzo e angolo cottura, una camera da letto e un bagno oltre a due piacevoli balconi. Il riscaldamento è autonomo e alimentato a metano, con impianto a radiatori. Lo stato di conservazione è ottimo e l'appartamento viene venduto completamente arredato. Possibilità di acquisto box (€ 19.000,00). L'edificio è composto da un totale di 5 piani e l'appartamento si trova all'ultimo piano, garantendo così una tranquillità e una privacy assolute.
Per maggiori informazioni
+39 035.21.91.22
Caratteristiche
- Esposizione Interna
- Porta blindata
- Pompa di calore
- Esposizione Esterna
- Cancello elettrico
- Condizionatore
- Fibra ottica
- Ascensore
- Video-citofono
Bergamo - Borgo Palazzo
Bergamo si trova in territorio pedemontano, dove l'alta pianura lascia spazio agli ultimi colli delle Prealpi Orobiche, a metà strada tra i fiumi Brembo e Serio. Il nucleo antico della città è stato fondato proprio sui colli.
Numerose sono le ipotesi avanzate per spiegare l'origine del toponimo Bergamo. In latino classico il toponimo è attestato come Bergomum. Considerando una possibile origine indoeuropea del nome, accostandola al greco Πέργαμον (Pérgamon) con il significato di "cittadella, rocca", ma anche alla base prelatina barga "capanna". Lo storico e politico bergamasco Bortolo Belotti ha accostato il toponimo a precedenti nomi preceltici, dai quali deriverebbe il nome Bèrghem, di cui Bergomum sarebbe poi stata solo la latinizzazione, attribuendo il significato ancora in uso nella lingua tedesca di montagna e casa.
L'abitato di Bergamo è suddiviso in due parti distinte: la «Città Alta», cinta da mura e posta in altitudine più elevata, e la «Città Bassa», la quale – benché sia anch'essa di antica origine e conservi i suoi nuclei storici – è stata resa in parte più moderna da alcuni interventi di urbanizzazione.
Bergamo infatti è suddivisa in diversi Borghi, quartieri e parrocchie: partendo dalle più antiche
Borgo Pignolo, Borgo Santa Caterina, borgo San Lorenzo, Borgo sant’Alessandro
La parrocchia di Sant’Agostino e Sant’Anna che interessano l’area del centro città con Porta Nuova e il Sentierone
Successivamente sono sorti Monterosso, Valtesse, Celadina, Loreto, Longuelo, Redona, Villaggio degli Sposi,
Campagnola, Colognola, Boccaleone, Grumellina…
Mezzi pubblici di trasporto
Bergamo è circondata su tre lati da un sistema di strade tangenziali, collegato all'autostrada, da cui partono le strade provinciali e statali dirette verso le valli e verso i capoluoghi delle province confinanti. La principale via di comunicazione tra la Val Brembana, il capoluogo orobico e il settore orientale della provincia è la Tangenziale Sud di Bergamo. Il Rondò delle Valli, altro nome del Largo Decorati al Valor Civile, è una rotatoria importante nel sistema viabilistico della città. Situato a nord-est, collega le strade statali e provinciali delle valli Seriana e Brembana con la circonvallazione che si snoda a sud del capoluogo, nonché col centro cittadino
Il trasporto pubblico urbano è svolto mediante una rete di autoservizi gestita da ATB, integrata dalla Funicolare di Bergamo Alta, che collega la città bassa (viale Vittorio Emanuele II) con quella alta (piazza Mercato delle Scarpe) e dalla Funicolare di Bergamo-San Vigilio, che unisce la seconda, dalla porta Sant'Alessandro, con il colle di San Vigilio.
Nel centro città si trova anche la stazione ove transitano le maggiori tratte ferroviarie è infatti servita da treni regionali operati da Trenord nell'ambito del contratto di servizio stipulato con la Regione Lombardia e collegamenti a lunga percorrenza svolti da Trenitalia e Nuovo Trasporto Viaggiatori. Nelle adiacenze di tale impianto ha capolinea la tranvia Bergamo-Albino, inaugurata nel 2009.
Di prestigiosa importanza è sicuramente la presenza dell’Aeroporto Internazionale “Il Caravaggio”, terzo scalo italiano per numero di passeggeri. Il 23 marzo 2011 viene ufficialmente intitolato al celebre pittore Michelangelo Merisi, detto Il Caravaggio. Lo scalo è principalmente utilizzato da compagnie aeree a basso costo per le quali risulta essere il primo in Italia per numero di passeggeri e per la società di ricerca specializzata britannica Skytrax rientra tra i 10 migliori aeroporti low-cost del mondo. L'aeroporto nasce nel 1937 per scopi militari, dedicato all’aviatore Antonio Locatelli. Nella provincia di Bergamo esistevano campi di volo già dal 1911 (ad Osio Sotto) e ne vennero costruiti altri durante la Prima guerra mondiale. Nel 1949 istituti bancari, gruppi commerciali ed enti locali costituirono un comitato per dotare Bergamo di un aeroporto civile. La conclusione di questo lungo iter si ebbe il 16 luglio 1970, quando venne costituita la "Società per l'Aeroporto Civile di Bergamo – Orio al Serio". Nel 2001 l'aeroporto ottiene la Certificazione di Qualità ISO 9001 del settore passeggeri. I presupposti per lo sviluppo di Orio si sono creati nell'agosto 2002, in concomitanza con la chiusura temporanea di Linate per il rifacimento della pista e la deviazione di parte del traffico su Bergamo. In quest'occasione lo scalo orobico ha saputo dimostrare all'opinione pubblica e all'aviazione civile di essere pronto ed attrezzato per supportare volumi di traffico di gran lunga superiori al milione di passeggeri l'anno raggiunto nel 1999. Nel 2003, con l'arrivo prima di Ryanair e poi di altri vettori a basso costo, Orio al Serio inizia a crescere in modo esponenziale e, nel giro di poco tempo, diventa il più importante scalo italiano dei voli low cost. Basti pensare che nel 2009 da Orio sono passati 7.160.008 persone, diventando il 4° scalo italiano per numero di passeggeri. Nel dicembre 2009 è stato inaugurato l'ampliamento della zona commerciale del terminal passeggeri, con nuovi servizi, negozi e punti ristoro. Nel dicembre 2015 l'aeroporto ha superato i 10 milioni di passeggeri trasportati in un anno portando l'aeroporto in 3ª posizione nella classifica degli aeroporti italiani per traffico passeggeri. I principali motivi di questo notevole incremento sono la continua aggregazione di voli e compagnie aeree; per esempio le più recenti sono Pobeda Airlines, gruppo low-cost di Aeroflot, che ha aperto un collegamento giornaliero tra Bergamo e l'Aeroporto di Mosca-Vnukovo.
Comuni confinanti e Distanze
Orio al Serio 3,1 km
Gorle 3,4 km
Torre Boldone 3,7 km
Ponteranica 4,1 km
Sorisole 4,4 km
Azzano San Paolo 4,5 km
Seriate 4,5 km
Lallio 4,6 km
Mozzo 4,7 km
Curno 4,9 km
Ospedale Papa Giovanni XXIII e cliniche
Tra i fiori all’occhiello della città Orobica spicca sicuramente il nuovo Ospedale Papa Giovanni XXIII, attivo dal 14 dicembre 2012. Grazie all’eccellenza di alcuni dipartimenti quali quello di oncologia, chirurgia pediatrica, cardiochirurgia, neurochirurgia…. è diventato un polo di riferimento fondamentale per l’assistenza al malato tanto che vengano da diverse parti d’Italia per ricevere le cure mediche.
Inoltre sono presenti in città altre cliniche di notevole importanza quali: Clinica Humanitas Gavazzeni, Casa di cura San Francesco, Clinica Castelli e Casa di Cura Palazzolo.
Scuole
Ogni circoscrizione è servita da una struttura scolastica statale, inoltre in città ci sono diverse scuole paritarie di diverso grado.
Importante è anche il polo Universitario che dall’originaria sede in Città Alta si è sviluppato con diverse discipline nell’area del centro città.
L'Istituto superiore studi musicali Gaetano Donizetti (conservatorio della città) di cui fu illustre allievo Gaetano Donizetti fu fondato nel 1806 da Johann Simon Mayr con il nome di "Lezioni caritatevoli di musica", fin dall'inizio improntato a moderni criteri didattici e culturali.
Biblioteche
Oltre alla biblioteca civica Angelo Mai e la biblioteca civica Caversazzi, sono presenti numerose biblioteche, tra le quali spicca la nuova Biblioteca comunale centrale Antonio Tiraboschi situata in via San Bernardino 74, progettata da Mario Botta.
Centri di ricerca
Istituto di ricerche farmacologiche "Mario Negri”. Istituto di Ricerche Farmacologiche Mario Negri è una fondazione privata senza scopo di lucro nata a Milano nel 1961 per volontà di Mario Negri (1891-1960), gioielliere e filantropo milanese, e su iniziativa di Silvio Garattini, fondatore e attuale direttore. Il suo fine è contribuire alla difesa della salute e della vita umana
Il Parco Scientifico Tecnologico Kilometro Rosso, che si trova lungo l'autostrada A4 alle porte di Bergamo, è un contesto d'eccellenza che ospita aziende, centri di ricerca, laboratori, attività di produzione high-tech e servizi all'innovazione.
Cenni storici
Bergamo è stata una città importante nella storia, non solo della Lombardia, ma anche dell’Italia in generale. Conosciuta per il suo passato da città confinante tra il Ducato di Milano e la Repubblica di Venezia, era un bastione ben fortificato per la sua importanza commerciale e strategica data la sua posizione di crocevia per il commercio dell’epoca. Le prime tracce storiche di Bergamo risalgono all’età del ferro anche se la comparsa storica come città avviene soltanto in epoca romana. L’origine della popolazione bergamasca è stato oggetto di dibattito tra vari storici che sostengono 2 ipotesi diverse. Bergamo sarebbe stata fondata da Cydno, figlio di Ligure che era capostipite della popolazione dei liguri. Una seconda ipotesi invece fa risalire le origini di Bergamo alle popolazioni etrusche, dilagate nel territorio bergamasco. In epoca romana Bergamo diviene un fiorente municipio di circa duemila abitanti. Della città romana non è rimasto quasi nulla, ma di certo essa ha lasciato una forte eredità in termini urbanistici, che ha influenzato enormemente le fasi successive di sviluppo del territorio bergamasco. A seguito del disgregamento dell’Impero Romano, dopo ripetuti saccheggi, Bergamo passa nel 568 sotto il dominio dei Longobardi, divenendo sede di uno dei più importanti ducati del Regno. Con la sconfitta dei Longobardi nel 774, la città bergamasca si trasforma in Contea franca. Il dominio di Bergamo verrà retto per anni da una serie di vescovi-conti, che determineranno le sorti della città sino al 1098, anno di nascita del Comune di Bergamo. Divenuto libero comune Bergamo conquista l’autonomia, sancita dalla vittoriosa battaglia di Legnano del 1176 contro l’imperatore Federico Barbarossa. Questi sono anche gli anni in cui a Bergamo si costruiscono il palazzo del Comune e la grande chiesa di S. Maria Maggiore, che diedero alla città bergamasca l’aspetto medievale che la caratterizza ancora oggi. Il periodo dell’autonomia comunale nella città di Bergamo si protrae sino alla fine del Duecento, quando la città bergamasca cade sotto l’influenza del Ducato di Milano. In questo periodo si costruirono in particolare la Cittadella e la Rocca, simboli del potere visconteo su Bergamo. Dopo periodi di cruenti e sanguinose guerre interne, Bergamo viene annessa alla Repubblica di Venezia nel 1428, il cui dominio porta finalmente al territorio bergamasco pace e prosperità. La città di Bergamo conosce un nuovo periodo di splendore culturale e artistico, divenendo teatro di una crescente presenza di attività economiche e di progressivi incrementi insediativi. Il governo della Serenissima ricostruisce la città vecchia, edificando una nuova cinta muraria, il Palazzo Comunale e Piazza Vecchia. Da ricordare inoltre è la costruzione delle famose mura bastionate, un’opera gigantesca e di grande impatto che stringe ancora oggi città alta. Con la caduta nel 1797 della Repubblica di Venezia Bergamo passa sotto il dominio di Napoleone e della Repubblica Cisalpina. Dopo la breve dominazione francese il territorio di Bergamo è annesso al dominio austriaco, entrando a far parte del Regno Lombardo-Veneto. Questo periodo storico per l’Italia e Bergamo è ricco di cambiamenti politici, infatti la città bergamasca prende parte al Risorgimento fornendo la maggior parte dei Mille volontari italiani di Garibaldi; ciò permette alla città bergamasca di fregiarsi del titolo di “Città dei Mille”. Agli inizi del Novecento iniziano ad apparire in città le prime industrie e i primi interventi di edilizia economica e popolare. Nella città bergamasca vengono edificati i grandi impianti di servizio della città moderna (il cimitero, l’ospedale, i mercati e il macello). Completata negli anni trenta l’edificazione delle aree centrali e il risanamento di città alta, negli anni della costruzione post-bellica la città segue uno sviluppo abbastanza equilibrato, espandendosi nelle aree pianeggianti e salvaguardando lo straordinario ambiente dei suoi colli e del centro storico, che è oggi uno dei nuclei meglio conservati e vitali delle città italiane.
Musei e Pinacoteche
Nella zona settentrionale della città bassa si trova l'Accademia Carrara (fondata dal conte Giacomo Carrara nel 1796), sede di esposizioni artistiche. Una delle ultime ad aver avuto risonanza nazionale è stata quella dedicata alle opere di Lorenzo Lotto. Altri musei cittadini sono il Museo donizettiano, la Galleria d'Arte Moderna e Contemporanea (GAMeC), il Museo Diocesano d'Arte Sacra, il Museo storico, il Museo Matris Domini, l'Archeologico, il Museo di scienze naturali, l'Orto botanico.
Teatri
Gaetano Donizetti
Il teatro Donizetti è il principale teatro di Bergamo, nasce verso la fine del XVIII secolo col nome di teatro nuovo o teatro di Fiera in un'area adibita a Fiera. L'inaugurazione ufficiale invece avvenne il 24 agosto 1791 e il teatro viene intitolato a Ricciardi. La struttura originaria, completamente diversa dall'attuale, fu distrutta da un incendio, forse doloso, nel 1797. L'architetto Giovanni Francesco Lucchini, che già aveva progettato l'interno del teatro andato distrutto, ricevette la commissione di guidare i lavori di costruzione del nuovo teatro. Bisogna aspettare il 30 giugno 1800 per l'inaugurazione della struttura così come noi la conosciamo. Nel 1840 per la prima volta Bergamo tributa una pubblica manifestazione al bergamasco Gaetano Donizetti, presente in teatro per la rappresentazione della sua opera L'esule di Roma. Giuseppe Verdi, presente in sala, debutterà al Riccardi con Ernani nel 1844. Tra i Direttori d'orchestra più celebri dell'800 che hanno diretto al Teatro Ricciardi di Bergamo, si annovera il M° Antonino Palminteri, presente sul podio del Ricciardi nel 1883 portando in scena La Favorita di Gaetano Donizetti. Nell'agosto e nel settembre del 1891, Il M° Antonino Palminteri ritorna al Ricciadi, portando in scena Opere quali: Aida di Giuseppe Verdi, Cavalleria rusticana di Pietro Mascagni. Nel 1897, in occasione del centenario della nascita del compositore, e nel corso delle solenni onoranze, il teatro Riccardi assume il nome, che porta tuttora, di teatro Gaetano Donizetti
Altro teatro storico è il Teatro Sociale sito in Bergamo Alta. È un teatro all'italiana con platea ovale e 86 palchi distribuiti su tre ordini e sormontati da un loggione. Inaugurato il 26 dicembre 1808 col nome originario di Teatro della Società, fu costruito su un progetto di Leopoldo Pollack finanziato da un gruppo di nobili della città. Rimase in piena attività fino agli anni venti del Novecento, aprendo anche a generi nuovi come l'operetta e persino a esibizioni di moderna tecnologia quali il grammofono e il cinematografo. Gli ultimi spettacoli risalgono al 1932. Acquisito dal Comune di Bergamo nel 1974, fu sottoposto negli anni successivi ad interventi di manutenzione straordinaria e messa in sicurezza che si conclusero nel 1981. Negli anni successivi venne destinato principalmente ad esposizioni d'arte, fino all'inizio (2006) dei lavori di restauro finalizzati al pieno recupero del teatro alla sua funzione originaria. Il Teatro Sociale è tornato in attività nella primavera del 2009.
Più moderna è la tensostruttura che ospita il "Creberg Teatro Bergamo" con 1536 posti a sedere che ne fanno uno dei teatri della provincia più grandi.
Altra struttura teatrale è l'Auditorium di piazza della Libertà. L'edificio che ospita l'Auditorium è stato realizzato nel 1937, come sede della locale Federazione fascista e noto come “Casa della libertà”.
Impianti Sportivi Comunali
La città ospita uno stadio comunale, base della locale squadra di calcio, l'Atalanta Bergamasca Calcio, un palazzetto dello sport e un impianto di piscine comunali (Piscine Italcementi).
Parchi
Oltre a un'estesa rete di parchi cittadini, la città vanta il Parco dei Colli di Bergamo, riconosciuto a livello regionale come area protetta. Il simbolo del parco è un riccio rosso. Caratteristica di questo parco è l'avere al suo interno la Città Alta e quindi svolgere azione di tutela e salvaguardia non solo delle grandi aree collinari boscate ma anche del costruito.
BORGO PALAZZO
Borgo Palazzo prese tale denominazione da un certo palazzo creduto eretto da Carlo Magno e facente parte della corte Morgola nel secolo VIII. Inizia alle cosiddette Porte di S.Antonio, all'incrocio tra via Camozzi e via Pignolo, proprio dove esistevano i "rastrelli" del Dazio Consumo. Dopo Palazzo Camozzi, si prosegue tra negozi, sino a giungere sul ponte della Morla. Lasciato il ponte alle spalle, ci inoltriamo verso il cuore del Borgo. Negozi di arredamento, ristoranti, orafi, fotografi e panettieri. Il Borgo rivela la sua vera identità. Il lungo serpentone di case che si snoda dona al Borgo un senso di dignità e cura, in una cornice di massima semplicità, confortata da un'atmosfera confidente ed ottocentesca fino al magnifico scenario offerto da piazza S.Anna, con la Parrocchiale e l'oratorio maschile del "Sacro Cuore", dove, nel 1945, venne fondata la società sportiva U.S. Olimpia, con lo scopo di promuovere la pratica dello sport tra la gioventù del Borgo e della città tra queste possiamo ricordare l'Olimpia Pallavolo Bergamo, squadra pallavolista maschile attualmente in Serie B1. Nel 1859, su progetto dell'architetto Giuseppe Berlendis, fu inaugurata la chiesa di S.Anna notevole è la bellezza della facciata e la maestosità dell'intero complesso ne fanno una delle chiese più belle di Bergamo. Da piazza S.Anna alla parte moderna del Borgo, si lasciano alle nostre spalle edifici e case di vecchio stampo. Oltre, dopo il complesso delle Canarie, sorge, tra cipressi e ai piedi della Maresana, il Cimitero Civico. La facciata imponente appare in tutta la sua colossale grandezza.
In Piazza S. Anna, trovi anche al centro di uno dei nuovi quartieri nati tra la fine del XIX e l’inizio del XX secolo. La Casa Donati Baldelli (1910-15) comprendeva circa 50 appartamenti e conserva balconi in ferro battuto in stile Liberty. Il committente, Donati, era il direttore dell’impresa di costruzioni che qui lavorò molto e fu socio fondatore della scuola d’arte Fantoni, poco distante e ancora attiva.
In via Frizzoni sono state erette le Case Pesenti (1910-15), progettate dall’architetto Angelo Sesti come case d’affitto per gli impiegati dell’Italcementi. Meno preziose rispetto ad altri esempi, le Case Pesenti spiccano per la loro delicata ed armoniosa decorazione. Sottili lesene, cornici e ringhiere in ferro battuto si alternano e si ripetono, variando nel colore o nella posizione, in un gioco che percorre l’intero isolato. Negli anni '60 iniziano gli interventi di ammodernamento della zona, che viene resa così sempre più confacente alle nuove esigenze di un quartiere dove passato e presente, tradizione e rinnovamento si fondono.
Borgo Pignolo è quella parte di Bergamo che si snoda fra Città Alta e bassa, delimitata per un vertice dalla chiesa di San Michele al Pozzo Bianco e racchiusa più in basso tra la chiesa di Santo Spirito e l’Accademia Carrara. Borgo Pignolo si colloca a cavallo tra Bergamo Alta e Bergamo Bassa lungo un itinerario incredibilmente suggestivo: alla sequenza dei palazzi signorili rinascimentali e neoclassici, si aggiungono i laboratori artigianali, tra i quali quello di un liutaio di fama internazionale e di numerosi restauratori. Fra le dimore storiche anche una delle più prestigiose location cittadine, il meraviglioso Palazzo Agliardi. L’unicità di Borgo Pignolo è quella di permettere all’arte antica di incontrare l’arte contemporanea, compiendo questa piccola magia nell’armonico susseguirsi di gallerie d’arte e botteghe antiquarie. Il percorso si arricchisce infine grazie ai tanti piccoli locali che costellano la via maestra, via Pignolo appunto. Questo antico borgo vede l’alternanza di splendide dimore nobiliari cinquecentesche, che racchiudono al loro interno bellissimi cortili. Borgo Pignolo dai bergamaschi è anche soprannominato “Borgo del Sapere”: nella parte alta oggi vi è infatti collocata la sede del Dipartimento di Lettere e Filosofia dell’Università di Bergamo, proprio lungo le vie anticamente percorse da illustri personaggi provenienti da Venezia: eminenti rettori o autorità cittadine, che transitavano per il borgo dirigendosi verso Città Alta. Dei palazzi signorili che regalano una perfetta sequela di arte rinascimentale e neoclassica, uno fu poi posseduto dalla famiglia dei Tasso, all’interno del quale fu ospite l’insigne poeta Torquato. Altri ospitano, nelle ampie sale, incredibili affreschi. Tra le viette acciottolate del Borgo si trova la Chiesa di S.Bernardino, dove è collocata una stupenda pala d’altare di Lorenzo Lotto, risalente al 1521. In via Pignolo si trova infine l’interessante Museo Bernareggi, 20 sale dedicate all’arte sacra che custodiscono, tra le altre, opere di L. Lotto, G. B. Moroni e C. Ceresa.
Infrastrutture e servizi:
Casa di cura Hospice di Borgo Palazzo
Distaccamento Neuropsichiatria infantile dell’Ospedale Papa Giovanni XXIII
Bergamo Uno centro di medicina preventiva
Museo di Palazzo Agliardi:
Museo Adriano Barnareggi
Unione Bergamasca Consumatori
Scuole:
Centro internazionale studi Montessoriani
Liceo Artistico Manzù
Istituto Comprensivo Donadoni Scuola secondaria di I grado
Scuola paritaria: Istituto S. Angela Merici Suore Orsoline
Scuole Cattoliche parrocchiali S. Anna, scuola dell’Infanzia
Scuola paritaria per l’infanzia S. Anna
Scuole Pubbliche Istituto comprensivo Donadoni Scuola Media
Arcobaleno associazione Scolastica
Asilo nido Bebè
Studio First
Ischool scuola paritaria secondaria di I grado
Istituto di istruzione superiore “M. Rigoni Stern”
Scuola d’arte applicata Fantoni
Centri Commerciali:
Di più
Alimentari Donata
F.lli Marchesi
Carrefour Express
MD
Parchi:
Parco Caprotti
Parco Marenzi
Infrastrutture e mezzi di trasporto:
Attraversata dalla sopraelevata della circonvallazione Mugazzone. E’ben servita dalle linee dell’ATB e dalla linea dell’ATV
Cineteatro del Borgo
Presso l’oratorio di Sant’Anna con visioni di film in nuova uscita





















