Recente trilocale in piccola palazzina
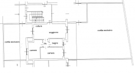
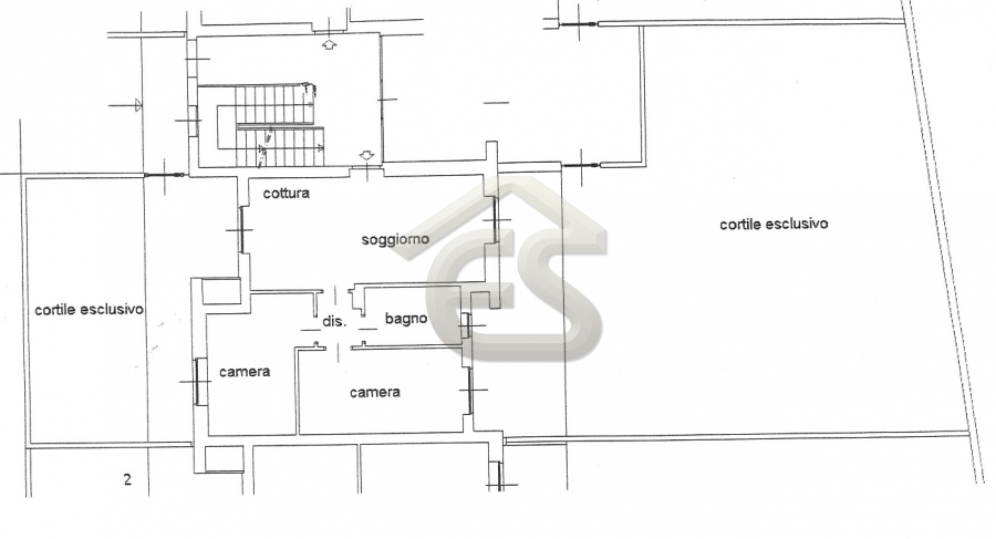
ALZANO LOMBARDO: appartamento di recente costruzione, posto al piano terra di una mini palazzina, composto da ingresso con soggiorno, che affaccia su uno splendido giardino di un ampia metratura, cucina a vista, dalla quale si può accedere ad un secondo spazio esterno piastrellato, dove poter posare un bel gazebo per godersi pranzi e cene in compagnia di amici. Nella zona notte troviamo due camere da letto e un bagno finestrato con doccia. Completa la proprietà un ampio box singolo. L'appartamento è in classe "B" ed è dotato di tutte le nuove tecnologie del momento, dal riscaldamento a pavimento, all'aria condizionata in tutti gli ambienti, alle tapparelle elettriche, alla caldaia con pannello solare termico, alla basculante elettrica, al cappotto esterno per isolamento termico e per finire all'antifurto sia perimetrale che sugli infissi.
Per maggiori informazioni
+39 035.21.91.22
Caratteristiche
- Esposizione Interna
- Impianto d'allarme
- Risc. a pavimento
- Esposizione Esterna
- Cancello elettrico
- Pannelli solari
- Condizionatore
- Video-citofono
- Porta blindata
- Domotica
Alzano Lombardo
Il Comune di Alzano Lombardo fa parte della Comunità montana della Valle Seriana e si trova ad un livello sul mare di 300 m. Nel fondovalle, provenendo da Bergamo, per primo si incontra il capoluogo Alzano (un tempo denominato Alzano Maggiore) che ormai forma un unico agglomerato urbano con Alzano Sopra, frazione posta anch'essa lungo l'asta del fiume Serio prima del confine con Nembro. All'interno, risalendo il corso del torrente Nesa, prima si incontra la frazione Nese e poi la località Busa, dove il corso d'acqua si dirama in due rami secondari. Il primo volge verso Nord-Ovest in una piccola valletta, compresa tra i monti Solino, Canto Basso e Colletto, nella quale ad un'altezza di circa 500 m s.l.m. è situato il borgo di Olera; il secondo invece si sviluppa in direzione Nord e comprende le frazioni Burro, posto sulla destra orografica della valle a circa 550 m s.l.m. in fronte a cui, sull'opposto versante, si trova Brumano. Salendo ancora si trova Monte di Nese, adagiato su una terrazza naturale in posizione panoramica prossima agli 800 m s.l.m. e circondato dai monti Cavallo, Filaressa e Colletto.
Comuni confinanti e Distanza
Villa di Serio 1.20 km
Ranica 1.60 km
Nembro 3.00 km
Ponteranica 6.00 km
Zogno 8.60 km
BERGAMO 3.90 km
Gorle 6.20 km
Albino 6.10 km
Scuole:
Nel Comune sono presenti scuole di diverso grado statali e paritarie:
Scuola Statale dell’infanzia Alzano Lombardo, Busa
Scuola Paritaria dell’infanzia Achille Carsana
Scuola Paritaria Asilo Infantile parrocchiale Regina Margherita
Scuola Paritaria dell’Infanzia Suor Maria Margherita Augusta Pesenti
Scuola Statale primaria Alzano Lombardo
Scuola Statale primaria Alzano Lombardo, Nese
Scuola Statale primaria Alzano Lombardo Sopra
Scuola Paritaria primaria S. Giuseppe
Scuola Statale secondaria di I grado SMS
Scuola Paritaria secondaria di I grado Paolo VI
Scuola Statale secondaria di II grado Liceo Scientifico Edoardo Amaldi, opzione scienze applicate e sezione ad indirizzo sportivo
Negozi:
Il centro cittadino ospita diverse attività commerciali e l’ipermercato Conad.
Cenni storici:
Alzano Lombardo nasce in epoca romana come centuriazione e nel I sec d.C. conosce importanti opere di bonifica per renderlo zona agricola e di pastorizia. Nel VI sec divenne territorio Longobardo conoscendo un periodo di grande prosperità. Fin dall’età medioevale era famoso per la prospera fioritura delle arti della seta e della lana. Durante l’epoca comunale fu teatro di cruenti scontri contro i ghibellini essendo prevalentemente territorio guelfo come dimostrato dalla presenza del giglio di Grancia nel gonfalone di Nese. Nel 1630 il territorio di Alzano Lombardo fu venne colpito con inaudita violenza dell’epidemia di peste decimando la popolazione che si trovò costretta addirittura a bruciare case e chiese nella speranza di debellare il morbo. Dal XVIII secolo il territorio di Alzano Lombardo conobbe un’importante e florida crescita come centro artigianale, commerciale. Dall’inizio del XX sec divenne sede di importanti industrie tra le quali: Italcementi, Zerowatt e Cartiere Paolo Pigna, presenti ancora oggi. Tra le testimonianze più importanti abbiamo: La Basilica di San Martino V. con le tre Sagrestie e il Museo d’Arte Sacra S. Martino; il Palazzo Comunale (ex Pelliccioli del Portone) XVII sec; il monumento di archeologia industriale del Cementificio Intalcementi; il piccolo borgo d’origine medioevale Olera ancora ben conservato.
Varie:
Alzano inoltre ospita uno dei maggiori Ospedali della provincia di Bergamo: Ospedale Pesenti - Fenaroli con 206 posti letto, una ventina di reparti e il servizio di Pronto Soccorso.
Alzano Lombardo ha ben cinque segna vie C.A.I., più numerose varianti e risulta estremamente interessante, sia per gli aspetti paesaggistici e naturalistici presenti, sia come allenamento per vette più elevate. Infatti le vette raggiungibili da Alzano (Canto Alto, Filaressa, le Podone) si trovano a circa 1200 metri di altitudine ed offrono panorami mozzafiato sulle Orobie e non solo. Nelle giornate limpide si ammirano anche vette più importanti, dal Monviso, Monte Rosa, Pizzo Badile, Adamello fino al passo dell’Abetone, solo per citare le più conosciute. Se si parte dal fondo valle (circa 300 metri s.l.m.) il dislivello è riguardevole, ma nulla vieta di partire più in alto, dall’abitato di Monte di Nese o dall’incantevole borgo medioevale di Olera. Questi ultimi possono essere a loro volta mete più accessibili, unitamente alle località Burro e Brumano o alle nembresi Lonno e Salmezza.
Inoltre il comune è arricchito dalla presenza di un nuovo palasport dove è possibile praticare discipline sportive quali Basket, Pallavolo, Arrampicata, Judo, Kick Boxing. Aerobica, Pilates, dallo stadio Carillo Pesenti Pigna, con il campo da calcio e la pista d’atletica e altri campi da calcio nelle frazioni di Nese. La piscina comunale Acquadream e i campi da tennis nel Parco Montecchio.































